MODÈLE Aube Sur Le Fleuve
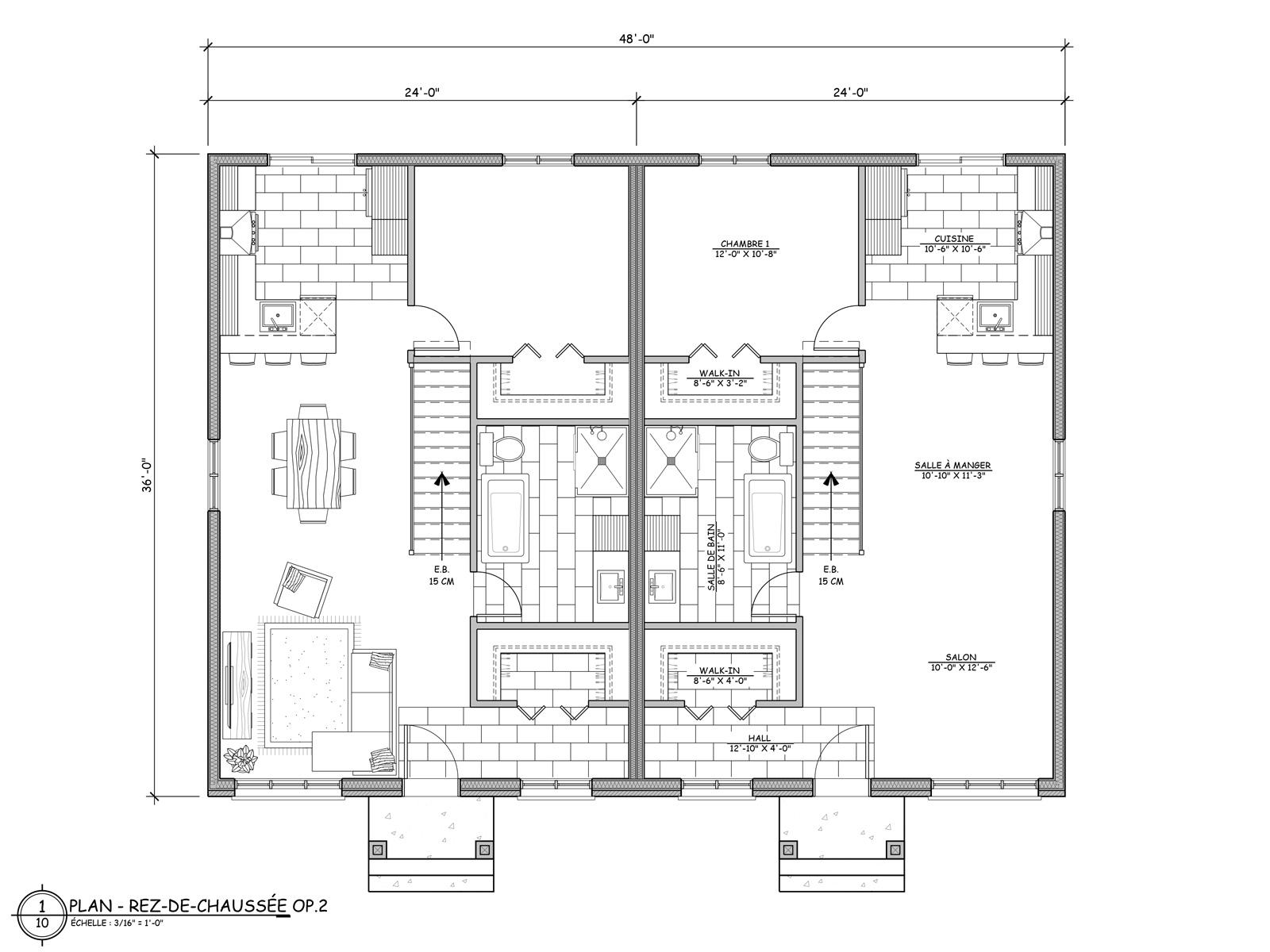
MODÈLE Aube Sur Le Fleuve
Chambres : 2
Salle de bain : 1
- Excavation et murs de fondation de 8-4 pieds
- Styrofoam 3 pouces sur murs de fondation
- Gypse sur murs de fondation et 1 couche de joints tirés
- Dalle de plancher de 3 pouces avec un styrofoam 1 pouce plus polythène .006mm
- Uréthane soufflé aux contours des poutrelles
- Érection de la charpente et pose de ferme de toit avec osb½
- Isolation murs : R-24.5 et plafond : R-41
- Gypse au rez-de-chaussé, joints tirés et peinture (sellant plus 2 couches de finition blanc)
- Électricité selon les normes standards
- Appareils de plomberie inclus
- Plancher flottant et céramique
- Armoires de cuisine et salle de bain en mélamine de couleur et comptoir prémoulé
- Échangeur d’air récupérateur de chaleur avec une bouche d’air frais dans chaque pièce
- Hotte de cuisinière
- Finition extérieure en vinyle
- Soffite et fascia
- Galerie avant en béton
- Pose de bardeaux incluant membrane
et sous-couche - Portes et fenêtres en aluminium noir
- Plafond standard 8 pieds
- Entrée d’auto en pierre concassée
- Garantie des maisons GCR
Coût de construction de base : Sur demande*
*Option 2 pour le rez-de-chaussée, frais additionnels de 3000$
*Toute modification à la proposition de base entraînera une hausse des coûts qui sera évaluée selon les demandes du client.
*Les plans de présentation sont à titre indicatif.
Calculatrice de taxes
La calculatrice de taxes de l’APCHQ vous aidera à évaluer le prix de vente final de la maison.
